
So firstly, there as been a long lag since we set up this little site… Despite watching many many episodes of Grand Designs, and working on a very large industrial development on an island of the west coast of Scotland, it has still surprised me how quickly time passes and how long it takes to tie down exactly what we are planning to build.
So to start, some good news!
When we purchased The Knock, the previous owners had had a planning proposal approved by Moray council but had a few conditions still to meet. We have worked through those, including the creation of a photographic survey by my wonderful wife, a building archaeologist by trade, and her able assistant, Catherine. All this means that the planning is now live, and the build has officially commenced!
However, these plans for the Knock and Steading include some changes to the Knock structure that we are not looking to do and turning the Steading into multiple holiday homes. Our dream has always been to live in the Steading as a largely open plan, single story family home and turn The Knock into a holiday home where our family and friends can spend time enjoying Glenlivet.
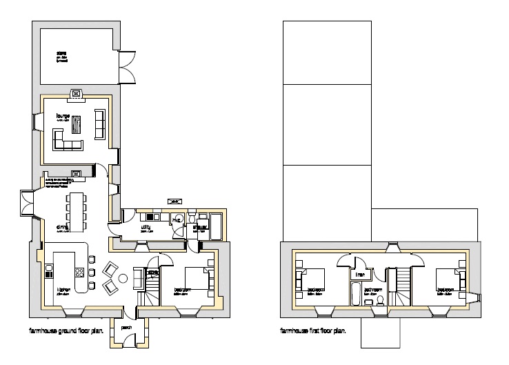
Updated plan of The Knock

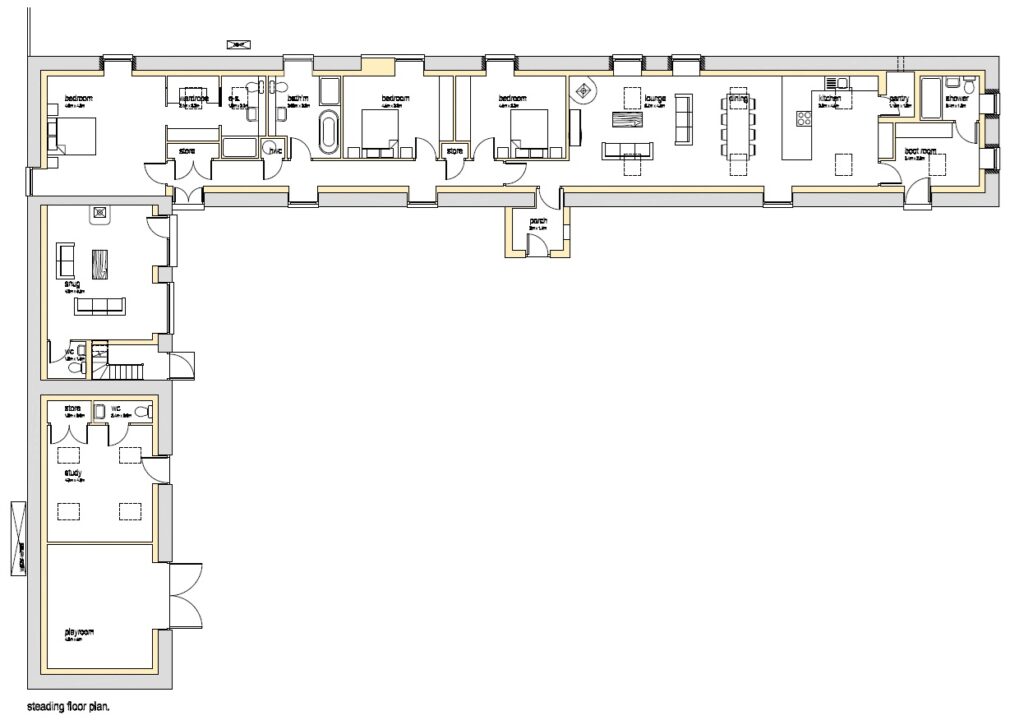
We have been working with the fantastic team at AW Laing to update the plans and get to a point where we can submit these changes. Above is where we have got to on the Knock and below is how we see the Steading working for us as a home in the future. We have tried to think of them both as homes forever, looking at how these buildings can look after us and our family over the years to come.
Update plan of The Steading

The next stage is going back to Moray council to see if they are happy for us to make these changes to the plans. Hopefully they see that we are managing to keep more of the historic development of the buildings, leaving the footprints of the buildings largely the same and still maintaining the look and feel in the landscape. All being well, we hope to be able to get on and start re-building the Knock so we have a home to move into by next year and start the work on the Steading.

So now we start the fun stuff, searching for clever solutions for insulation, windows and doors and, most importantly, energy creation ideas. As we are building this essentially from scratch, we want to take advantage of the wonderful setting so that we can make our home as green as possible. I am hoping to find ways we can utilize the burn that used to power the mill wheel to generate electricity for The Knock and Steading while on the lookout for other ways we can use knew technology to rescue our, almost, 200 year old piece of paradise.
Have you seen tghis?
https://www.youtube.com/@Gridlessness